第4回 間取りが決まった!いよいよ模型づくり。
さてさて、順調に家造りが進んでいる風早橋ヴィレッジI邸。
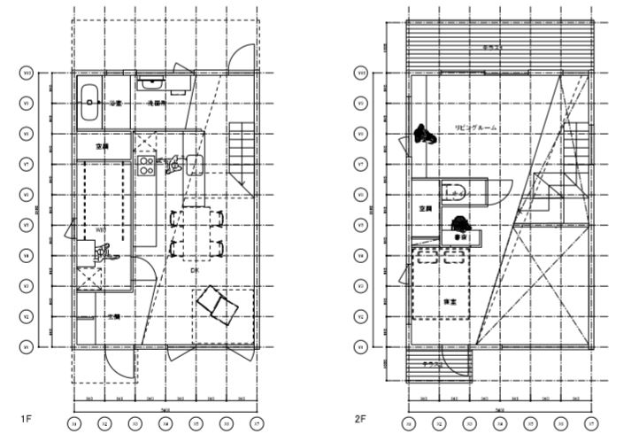
ついにプランが決まり、窓の位置まで決まりました!

まずは間取り。こちらは前回からほとんど変わっていません。ご夫婦いわく、「色々考えだしたらわからなくなって、とりあえず模型を作ってみてから考えてみようと思って。」とのこと。
分かります、だんだん紙に描いたプランを見ていても答えが見つからない瞬間。
『頭が動かないなら、手を動かしてみる!』
それは私達設計士も同じです。
そんな状態の中でも、窓の配置を考えてきてくれたのは素晴らしいです!(拍手)

南北にはドーンと抜けを作って、東西にはあまり開かない。これは設計士Sさんのアドバイスの元、出来上がった配置だそう。良いですよね~!絞る所はしぼって、開ける所は存分に開くことで空間にメリハリが出ています。
「でも、南側こんなに開いても崖しか見えなくない…?」
と奥様は少しやりすぎ感を感じているものの、
「えー!大胆に行こうよー!かっこいいよー!」
と旦那様はウキウキモード。
ご夫婦で意見が割れる瞬間は、どんな打合せでも見られます。笑
でも気がつくとお互いに良いところで収まるんですよね。さすが夫婦です。
この窓から見える景色の検討も、模型作ってみて…ですかね!
ということで、模型作り。

せっせと台紙を切って、貼って、組み立てます。
黙々と、黙々と…疲れたらもぐもぐと…
(集中力使いますからね、オヤツも大事です。)
私達も手伝いながら2時間ぐらいで完成です。
一通り見渡して、iphoneで目線の高さで写真とったり、ライトを当てて日差しの当たる向きを確認したり。模型を作ることで、もう一度間取りを振り返る時間にもなりますし、あらたな発見や議題がみつかります。
Iご夫婦は階段の位置が気になる模様。キッチンの上を階段が通ることになるので、ソワソワしそうなのと、ホコリが大丈夫なのか、というところが気になっているみたいです。本当に、その通り。ではどうするか?次回までの課題ですね!そして「吹き抜けの壁はどうやって作るのか?」ですが、模型で表現するのも難しかった…ということは作るのはかなり大変なんじゃないか…?と不安と期待が行ったり来たり。これは本当に思い切ったチャレンジになりそうです。!
第3回 斜めの吹き抜けと空間の広がり方
STEP0を終え、2周間ほどの宿題期間を経て、今日は間取りの打ち合わせです。
間取りを考えるためのベースはSTEP0ですが、そこで考えた土地のこと、家のこと、家族のことを踏まえて、具体的な内容を洗い出して行きます。
まずは、家族が溜まる中心が1階なのか?2階なのか?で間取りは大きく変わってきます。Iご夫婦は、「客を気にせず呼べて、適当に溜まることができる空間が1階に欲しい」ということで、おのずとLDKが1階になりました。2階はプライベートな寝室と、客間にも使えるサブリビングスペース。バルコニーでお酒を飲んだり、食事を楽しむことも考えて、サブリビングから外へ出られるように出来たら良いね、ということでバルコニー側に配置。
そして旦那さんのお籠り場になる書斎を真ん中に持ってきて、寝室とサブリビングを分けようという話が出てきました。

上記の話をまとめて、出てきた最初のプランがこちら。
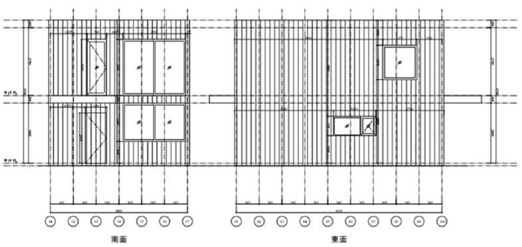
大胆な三角の吹き抜けで、どーんと抜けたLDKがありますね!どこに居てもそれとなく気配が分かる間取りです。面白そう。吹き抜けは手すりなのか、壁なのか、どういう風に下と繋がるのかで印象が変わりそうです。
設計士Sさんに「吹き抜けのつながりってどう考えてますか?」と聞いてみたところ、私の想像を遥かに超えたアイデアが出てきました!

すごい、、壁が、壁が斜めになってるー、、!!
これは一本とられました。どうやって作るのかはさておき(これから考えます笑)、とてもワクワクするアイデアじゃないですか。。!この壁は、薄い膜やポリカなどちょっと透ける素材で仕切っていくイメージのようです。恥ずかしながら私はそういった素材を使ったことがないので、ドキドキです。デザイナーさんが一緒だと、思いもしない提案があるので本当に新鮮で面白いです。

とはいえ、まだまだI夫婦の悩みは山積です。
・洗濯動線、もっとシンプルにしたいよね
・階段、おしゃれだけどキッチンと重なるとホコリとか気になるね
・トイレ、1階の方が良いのかな…
・書斎スペースはもう少し取れないかな?
・キッチンのレイアウト全然決まらない…
1回目ですもんね。STEP1で一旦まとめた間取りを持ち帰って、さらに考えてもらうことにしました。(たまに、一発で決まるお客様も居ますが、だいたい持ち帰ります。)次回は窓を考える回なので、すこし立体的に考えて行かないといけません。さあ、たいへんです!悩め悩め~!
第2回 STEP0『どういう家を作りたいか?』
ヴィレッジには、マスタープランという計画の概要が存在します。
今回は2棟のヴィレッジなので、2つのスケルトンハウスの配置とそのつながり、大まかな外構イメージが描かれています。これを元にしながら、ヴィレッジの作り方のルールとステップに沿って打ち合わせを進めていきます!

と言うわけで、いよいよ始まります!Iご夫婦の初回打ち合わせ!
スケルトンハウスは「家づくりノート」に沿って、打ち合わせSTEPごとに出された宿題をお客様自身にやってもらうことで、家づくりが進んでいきます。間取りも、窓の位置も、仕上げの材料も、全部お客様が考えます。
もちろん、私達設計スタッフは並走者として全力でサポートしていく訳ですが、それでも考えることは山のようにあります。なので、迷ったり、悩んでしまうこともしばしば…。
しかーし!
今回Iご夫婦は、「自分たちでは考えられないような面白い発想と提案が欲しい!とことんワガママに付き合ってくれる友人と一緒に家づくりをしたい!」ということで、エンジョイの設計スタッフに加え、強力なサポーターが登場です。
その方は旦那様の幼馴染の設計士さんでした。
旦那様のことも、奥様のことも昔から良く知っていて、長い付き合いとのこと。腹割って話せる、本当に信頼の出来る方ですね^^
なんて心強い助っ人なんでしょう…!
なので今回の家づくりは、Iご夫婦、設計士のSさん、私(エンジョイスタッフ)の3者で打ち合わせSTEPを進めていきます◎

初回は「STEP1:間取りの打ち合わせ」に入る前の、「どういう家を作りたいか会議」です。なので私達は「STEP0」と呼んでいます。家のテーマとコンセプト、生活の仕方をおさらいします。そして敷地図をみんなで見ながら、お庭をどうしたいか、どんな生活動線が良いかなど、間取りになる前のフワフワとしたイメージを書き込んでいきます。
この時点で、一階に人を呼べるキッチンとダイニング、大きなナナメの吹き抜け案が固まりました。そして旦那様の「デッキでゴロゴロする夢」。
初回から面白い構想です。STEP1でどんな間取りが出てくるのか愉しみです!
第1回 ヴィレッジ2棟計画、逗子寄りの葉山で。
逗子駅にも、森戸海岸にも歩いて出ていける、葉山の中ではかなり便利な地域、長柄。近くには川が流れ、山々の景色も眺められる、自然と利便性を兼ね揃えた、住むには丁度よいところです。そんな長柄の「風早橋」のほど近くにひっそりとヴィレッジ計画を進めています。
片側に山を背負った私道を上がっていくと、その土地は現れます。
大通りからは近いものの、奥まったところにあるので、静かで落ち着いて暮らせそうなトコロ。

計画はこんな感じです!
2棟並びの配置ですが、庭のとり方でうまく居場所を作っています。
(手前の家は裏側に庭の計画があります。)
私達はここを「風早橋ヴィレッジ」と名付けました!

昨年、奥の1棟は竣工し、すでにスケルトンハウスが建っています。
この状態を見て、隣の土地を購入されたIご夫婦。「自分たちらしい、少しずつ育っていく家をつくりたい」と、素敵なテーマをもって、スケルトンハウスに住むことを決めてくださいました。
そんなIご夫婦のスケルトンハウスの設計から竣工、そしてヴィレッジ完成までを追いかけていこうと思います。

陽が山々を照らし、明るい山ビューが楽しめそう。
ここから、設計スタートです!