第8回 四角い箱にぎゅーっと理想を詰め込む回
12月17日(日)。前回の打ち合わせから1ヶ月以上期間を置いた本日は、
STEP6『家づくりを再整理しよう』
今までの打ち合わせ内容を反映した図面や見積もりを見ながら、全体を整理する回。
やっとここまで来たけれど、打ち合わせの序盤と終盤で、考えが変わっていることも珍しくない。
なぜかというと、STEPを踏むごとに暮らしの解像度が上がっていくから。
一生懸命家をつくるんだけど、もちろん欲しいのは暮らし。
つまり、家を建てるというのはあくまでも手段であって、結局はどんな暮らしがしたいか。
知ってるようで知らない自分自身と対話することで、自然と思考が洗練されてくる。実に哲学的だとボクは思う。

V様ご夫婦は毎回楽しんで取り組んでいるけれど、やっぱり短期間で細かなところまで決めるのはなかなか大変だなあ……。
ボクが改めてそう思ったのも、今回給湯器の話が出たから。インフラの中でも重要な設備の給湯器。ガスにするか電気にするか。
予算はもちろん、性能、ランニングコストなども検討材料。うーん、実に悩ましい……。
「そうなんだ、ふーん…」て感じの初期段階から、比較検討出来るレベルの知識を入れないと判断できない。もちろんエンジョイワークスもお手伝いしますが、基本はお客さん次第。自分の家こそジブンゴトとして捉えて家をつくっていく。自分自身で調べたりショールームに足を運ぶのも必要。
人生知らないことはまだまだ沢山ある。だから面白い。

他にも各項目を一つずつ確認していく。
今までの打ち合わせの内容が反映された見積もりを精査していくのだけど、ボクでもピンとこない見積もりの項目がちょこちょこある。
例えば……『見切り材(みきりざい)』『雑巾摺(ぞうきんずり)』『キックプレート』。
普段なじみのないワード達。分からないものがあったら都度確認しましょう!
ちなみに、見切り材とは主に床や壁に使う素材の境目に施す材のこと。雑巾摺とは雑巾などで壁際の床を掃除した時に雑巾の端が壁について汚れるのを防ぐ材のこと。キックプレートはドアの下部に取り付ける、汚れや劣化を防ぐために取り付けるプレートのこと。
今回も改めて隅々までチェックするのだけど、
V様ご夫婦の場合、「これって何でしたっけ?」「ああ、あの部材のことか!だったら自分で作れるかも?」なんてクリエイティブな会話が飛び交う。
初めましてのワードでも、訳が分かれば何のその。
見積内容を正しく把握して、うまくプランしていきましょう!

最後に電気設備の細かいところを確認していく!
ボクが気になったのはこの言葉、『引っ掛けローゼット』。なんかどこかで聞いたことがある気がするけどなんだったっけ?
あ!そうそう、天井から照明器具を吊るすときのアレだ。丸いものから四角いもの、色んなタイプがある。『引っ掛けシーリング』っていうのもあって、ローゼットとの違いは、主に吊るす照明器具の重さ。ローゼットには金具がついていて、そこに取り付けることによってより重い照明器具を取り付けることが出来る。これだけでこんなに種類があったとは。
その他にもコンセントをアース付きにするかしないか、照明スイッチの種類、位置、高さはどうするか、窓ガラスをすりガラスにするか透明ガラスにするか、などなど。
図面を元に仕上がりについて改めて入念にチェックしていく。骨が折れる作業かと思いきや、暮らしと直結するこの作業。実に面白い。
『この場所にお気に入りの照明を取り付けたい』
『ここに家電を置くからコンセントはこの高さがいいな』
『このスイッチでも照明のON/OFF出来るようにしたら便利だね』
色んな暮らしのイメージを形にしていく。

さーて、今回も窓やキッチン、コンセントや照明等、盛りだくさんの打ち合わせになった!
ここまで来ると金額もほぼ見えてくる。もちろん予算はあるけれど、妥協はしたくないのが本音。
選んでいた設備や素材を変えるというのも一つの手段だけど、EWでは自分たちで手を加えてみるといったことも大歓迎。
DIYをやったことのない方でも、『ちょっとはやってみようかな?』『なんだか出来る気がする!』と思えるのがスケルトンハウスのいいところ。暮らしながらつくる。これがエンジョイワークス流。
今回V邸はほとんどご自身でつくっていくスタイル。
完成!というところまで来たらV様ご夫婦はプロ並みのスキルが身についているかもしれない。そもそも何をもって完成とするかもあやしいけど(笑)
次回は最後の打ち合わせ!今回の変更点を反映させて工事する内容を決める回。まだまだ気は抜けません!次回もお楽しみに!
第7回 △侮るべからず△地味だけど重要なとこ!電気設備考える回
10月28日(土)、本日はSTEP5『電気設備を考えよう』
今回V様ご夫婦は、恐らくスケルトンハウス史上最も素朴な形をご希望。
天井や壁、床、前回打ち合わせした水回りにおいても、最低限の形で、後で手を加えていくこと前提でここまで打ち合わせをしてきている。
もちろん壁も天井も床も、骨組みあらわしのままの予定。そうなると当然電気の配線、配管も剥き出しのまま。
照明、コンセントの配線をそれぞれ張り巡らす上で、どういう経路にするか考えるのと並行して、配線をカバーするのか?どんな素材でカバーするか?についても考えていく。
ちょっと地味だけど日々の生活に直結する大事な作業。今日も気合入れて打ち合わせしていきます!
ということで!本日は葉山にあるモデルハウスにて実際に照明やコンセントを見ながら、綿密に打ち合わせ!早速スタート~!

まず最初に話にでたのが照明の話。実は前回の打ち合わせの時に既にモノを選んでもらっていたのだけど、それが販売終了してしまっていた!
しかも、なんの変哲もない照明ではなく、マリンランプという、船に採用されるようなデザイン性のあるランプ。
ガーン……。
打ち合わせ始まってすぐ意気消沈していたところなのだけど、探してみると別のメーカーで似たようなものがあった! うん!こっちもステキ!
凝ったデザインのものこそ、生産量が少なく、無くなったらそれでおしまいということも多いため、在庫状況は打ち合わせ段階で一度確認し、最後着工前にもう一度確認します。
家のテイストに合わせてこれだ!と思って選んだ照明が、直前になって無い!なんてことにならないように。

照明とかスイッチを決めていく上で、ちょっと面白いのがトイレのスイッチの話。
皆さん、ご自宅のトイレの照明スイッチは中にありますか?それとも外?普段意識している人の方が少ないから、聞かれたら、あれ?どうなってたっけ?って一瞬考えちゃう。
どっちが正解というわけではないけれど、スイッチの位置で使い勝手が変わる。
大きな違いの一つは、スイッチが外にあると、トイレを使用中に外から電気を消されてしまうことがあること!扉によっては中の電気がついているかどうか分かる小窓がついているものがあって、外から見て電気がついていると、自分が消し忘れたと思って中に人がいるのに電気を消しちゃうことが結構ある(笑)。
最近は、人感照明とかもあるのでさして大きな問題ではないけど、普段の使い勝手と変わると敏感に反応してしまうものだよね。
細かい打ち合わせの中でも、ちょっと和むような話でした!(笑)。

本日の打ち合わせは盛沢山。お次はコンセントの出力の話。
通常のコンセントが100Vなのだけど、一部を200Vにしてほしいというご要望がでた。
100Vと200Vの違いは、簡単に言うと100Vは家庭用、200Vは業務用といったところ。
200Vにすることで、大型の作業効率のいい家電を動かすことが出来る。大空間の室温を調整するための大型エアコンや、洗濯乾燥機、IHクッキングヒーター、電子レンジとか。
大きな機械を動かすことが出来るようになるのはイイけど、その分電気代が上がるんじゃないの?最近電気代事態も上昇傾向にあるしちょっと気になるなあ……と思ったあなた。
ズバリ『電気代は100Vと変わりません!!』
ボクも、はっ!としたのだけど、電圧V(電気を押し出す力)が2倍になるだけであって、電気代はあくまでも電気使用量W(ワット)と使用時間に比例するだけ。
例えば、電子レンジを例に比較してみると……
100Vだと温めるのに500W×2分かかる食べ物が、200Vだと半分の1分で済む!
例)
・「100V」×「5A」=500W×2分
・「200V」×「5A」=1000W×1分
電気使用量が変わらないなら速い方がいいよね!ということになる。コンビニの200Vの電子レンジとかめっちゃ速く温まるよね。
ここまでいいとこ尽くしの200Vコンセント。デメリットとしては、200V対応の家電は高額な商品が多いこと。
ただ、作業効率を考えるとただ単にコストが高いとも言えないので考える余地は十分ある。後で100Vを200Vに変えようとすると、当然工事費用が掛かるので、使う予定があるのであればV様ご夫婦のように計画段階で施工するのがグッドです!

ふいー!ここまでで一旦、全ての項目の打ち合わせが完了!!
次回はSTEP6『家づくりを再整理しよう』ということで、これまでに決めたことを再度検討するフェーズ。
決めた部材や取り付ける位置、施工方法などはもちろん、全てにかかる見積もりも一度ここで確認するため、当然コストともにらめっこすることになる。
一生に一度の大きな買い物だもの。思っていたより安く済んだ!というよりは、計画していくうちにこれもあれもって感じでイメージが膨らんでしまって、コストも膨らんでいることの方が多い。
どこで折り合いをつけるか。非常に悩ましいところ……!
計画も大詰めを迎えつつあるV邸のストーリー!次回もお楽しみに!!
第6回 毎日いいキブン♪自分のお気に入りの場所はこうだ!
10月22日(日)。本日の打ち合わせは「STEP4水回りを考えよう」
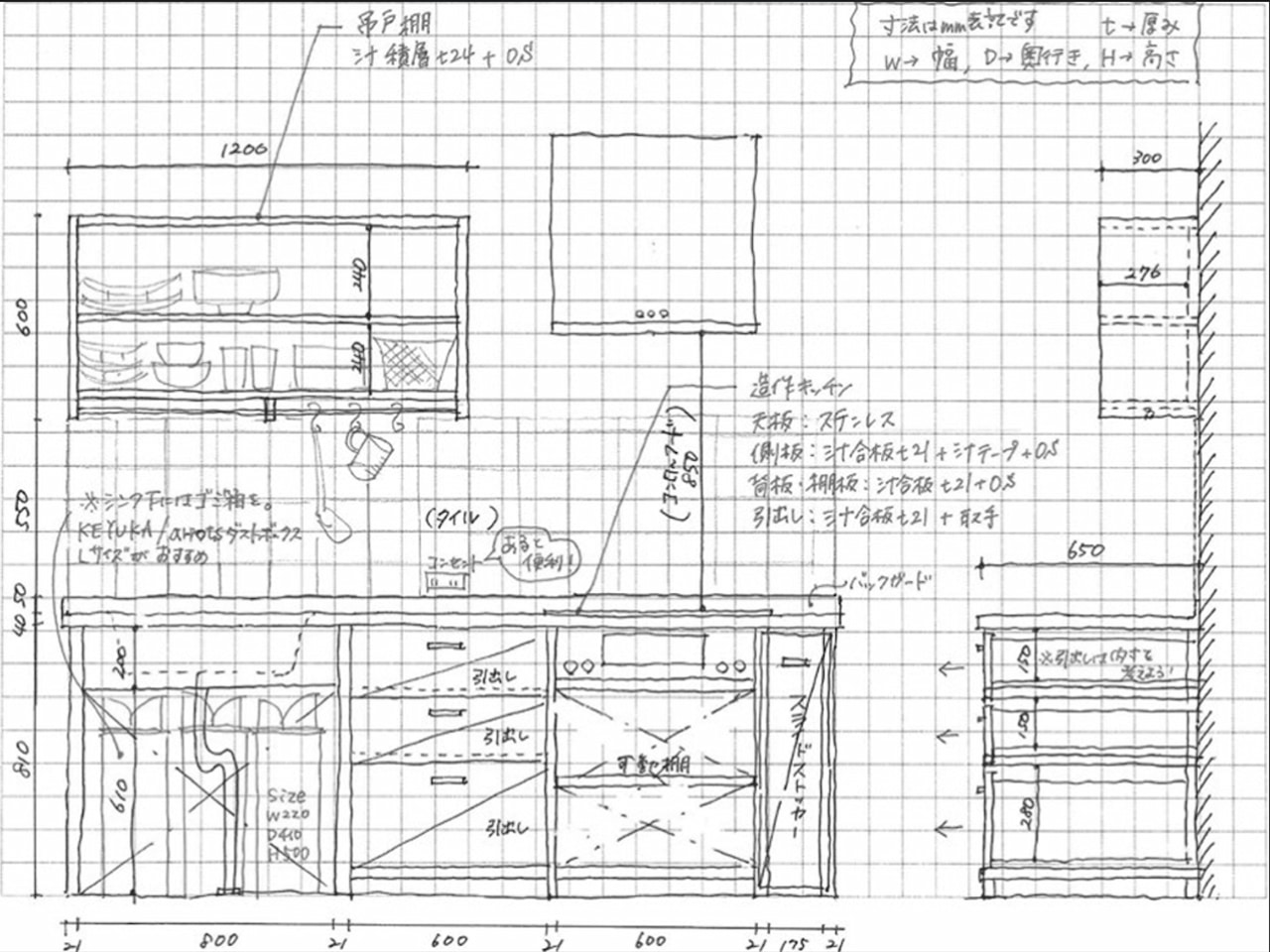
水回りというとキッチン、バスルーム、トイレなど、生活する上で極めて重要な住宅設備。間取りを考える段階で大体の位置については既に打ち合わせ済みなので、今回は実際にモノを決めていくのだけど、どういう仕様にするかで大きく2つに分かれる。
①シンクや蛇口など、自分の好みのパーツをイチから組み合わせて造作する。
②システムキッチンやユニットバスのような、多くの機能を兼ねそろえた既製品にする。
例えばキッチン。造作の場合、引き出しのサイズやカウンターの高さなど、細かい寸法まで自分で決められるし、設備も業務用の高火力のコンロやオーブン等を入れたプロ仕様にしたりと、自由に決められる。一方で、システムキッチンの場合は、機能やメンテナンス面で優れているのはもちろん、メーカーに保証されているといった点で安心でもある。
それぞれコストも違うし、実に悩ましいところ……。でも、是非ここは自分の感性で決めてほしい!
各設備を味気のないインフラとしてとらえるのではなくて、自分のお気に入りの場所としてデザインすることで、家事をする時もいいキブンで過ごせる。日々の暮らしにおいてはそういうことが大事だったりするんだよね(笑)。
はたしてV邸はどんな家になっていくのだろうか?
打ち合わせをしている我々もV様ご夫婦がお引き渡し後にどう仕上げるかの完成図は全く想像がついていないので、ワクワクしております!
早速打ち合わせスタート!

本日の打ち合わせに合わせて、あらかじめV様ご夫婦は水回り設備をショールームやカタログにてピックアップされていた!
基本、好みの設備を選んでもらってOKなのだけど、他の設備や間取りとの兼ね合いによっては調整することもあるため、そのあたりを詳しく打ち合わせ。
話を聞いていると、どうやらV様ご夫婦は水回りにも余白を残した上で、自分たちで手を加えていくようだ……!
ここでもチャレンジングなご夫婦!
自分たちでつくる上で、もちろん労力や費用、時間がかかるのだけど、その分一つ一つのエピソードが生まれていく。
棚をつくった日はものすごく暑い日だったとか、
買ってきた材料じゃ足りなくて、またホームセンターに買いに行ったとか、
反対向きにつけっちゃって直すのに結局半日かかった!とか。
後で笑い話になるような思い出たちが1ページづつ増えていく。これからも分厚いストーリーが刻まれていくに違いない。

設備の仕様や種類を決めた上で、細かいところを確認していく。水に加えてお湯も使えるようにするかとか。配管経路や給湯設備まわりのこととか。
その中でもボクが気になったのは蛇口。ちょこっとカタログをめくってみただけでもめちゃくちゃある。機能としてはシンプルに水やお湯が出るだけなのだけど、浄水器がついてたりタッチレスだったり機能も満載!
どれにしようか悩ましいところだけど、判断材料に入れてほしいのはズバリ「掃除のしやすさ」。壁から蛇口が出ている壁付け水栓や、ホースが伸びるシャワー付きの蛇口だと、日々の掃除がラクチンだったりする。
水回りに限った話ではなく、物を下に置かずに浮かせておくことで日々の掃除がしやすくなる。最近ではロボット掃除機が掃除しやすいような間取りや家具の配置にすることも多かったりするよね。
少し脱線したけど、そんな生活する上での利便性も考えながら、コスト、デザイン、いろんな角度から考えていきます!

正直、ボクがこのブログを書く前は、『暮らしながらつくるってイイの?』って感じで半信半疑だったけど、この姿こそが本来の家の姿なんじゃないかと思うようになってきた。そもそも昔ながらの家は、生活に合わせて増築していることも多いよな、と。
そんなことを考えててボクの頭の中をよぎったのが、
「何が描きたいかは、描きはじめないとわからない」というピカソの言葉。もちろん絵を描く上での話なのだろうけど、自分の頭の中のイメージを形にするという意味では同じこと。暮らしてみることで感じた喜びや不満の蓄積によって、頭の中の理想がより具体的になるということもあるだろう。
逆に考えてみると、この先何十年住む家について、ものの数か月で全て決めるなんてことは極めて難しい。1年前の自分と、今の自分とで考え方が変わっているなんてことは珍しくもなんともない。
今回のV邸スケルトンハウスのように、後で理想を詰め込める余白を残すことで、都度変化するライフスタイルの実現が可能になるし、型にはまらない自由な考え方も養われていく。

次回は電気設備を考える回。
家具や家電の位置を想定しながら、コンセントとか照明の位置、コンセントカバーの色や形なんかも決めていきます。
例えば、冷蔵庫用のコンセントは高い位置にほしいとか、洗面所にはドライヤーやヘアアイロン、電動歯ブラシとかシェーバーなど、多くの小物家電を使うことが多いからコンセントが多めに欲しい!とかね。
もちろん、その為の配線経路とかも考えていくことになる。
ちょっと地味だけど、日々の生活に直結する大事なこと。
次回の打ち合わせもお楽しみに!!
第5回 今一度どういうテイストの家にしようか考える回
前回の打ち合わせから間もなく。本日は10月15日(日)
ここまで、順調に進行しているV邸プロジェクト。
なんたってボクは、初めて打ち合わせに同席させて頂いているので、今までこの打ち合わせのスピード感をイマイチ感じていなかったのだけど、いざ冷静に考えてみて思った。
めちゃめちゃ早い(笑)。
2週間ごとに進んでいく通常のペースと比べて、単純に2倍のこの速さは伊達じゃない。
毎回このブログに書ききれないほどの細かい打ち合わせをしていて、その上無数の選択肢の中から検討、選択していくこのスピード感。当然、悩ましいときは立ち止まってじっくり考えましょう!ということで始まっているのだが、順調にここまで進んできている。
それもこれもV様ご夫婦のがんばりあってのこと。
ご夫婦間でも顔を合わせるたびに、この「家づくり」について綿密な打ち合わせがされているに違いない。都度、細かい打ち合わせが必要なので、家づくりの楽しさの反面、大変さも感じてしまうところなのだけど、とても楽しんで取り組んでいくれている!
今回の打ち合わせはもちろん、引き渡し後の自分達でやる部分についてもある程度のイメージを持っているV様ご夫婦だけど、いつ『完成』するか、なんなら『完成とするか』については、「気長にやります!」といった具合で、ご本人たちも想像がついていない様子(笑)。
そんなV邸の、いやV様ご夫婦のネバーエンディングストーリー。壮大なプロジェクトの一部を今回もご紹介していきます!

本日の打ち合わせは、「STEP3 インテリアを考えよう」
内装各所の仕上がりについて、考えていく。
例えるなら、前回までの打ち合わせがスケルトンハウスの骨組みを考えるフェーズ。
で、今回からいよいよ肉付け作業。といったところ。
ここでも数ある選択肢の中から決めていくのだけど、大きく分けてまず、2つに分けられる。
① 仕上げずにそのままにするか。
② 仕上げる場合、どの素材で、どう仕上げるのか。
『そのままにする』というのは、
例えば、天井なら構造体の梁を剥き出しにする。
床ならフローリングを張らない下地材のままにする。
壁なら構造柱を剥き出しにする。など。
後で手を加える余白を残すという目的で、仕上げをしないことも多いのだけど、デザインとしてそのままにするケースも少なくない。
特に、天井の梁なんかは、見せることで空間を広くみせたり、木の存在を感じられる仕上がりに出来るのだ!
他のハウスメーカーではきっちり仕上げるケースも多いと思うけど、そのあたりエンジョイではまったくもってお客さんの自由。今回のV邸の特性上、自分たちで手を加える時のことを考えて、現時点でどこまでやるかの細かい打ち合わせが必要になってくる。
決めることが少ないから打ち合わせも少ないと思いきや、そんなこともないのだ。

ここまで密着してきて、
暮らしながらつくるV邸の家づくりのスタイルは、改めてとても理にかなっている。と、ボクはふと思った。
というのも、賃貸でも、分譲マンションでも、最初は気に入って住んでみるものの、
実際に生活していると、「この扉の開き方が気に入らない」「ここに窓が欲しい」「この壁を取っ払いたい」など、大なり小なり不満が出てくる。
自分の理想を詰め込んで建てた注文住宅でも、実際に生活してみるとこうすればよかった。なんていう話を聞くことは珍しくない。
それならば、と、
より一層実際の使い勝手を想像して、バッチリ作りこんだとしても、そもそも年齢を重ねるにつれて、家族構成や趣味嗜好などが変化するわけで、切りがない。
つまり…
大事なのは、その都度「今どうしたいか」という、欲求に応えられるかどうかということ。
スケルトンハウスは、自由な発想から生まれた自分の理想を詰め込める箱。一度完成してからも、その時の気分、情熱を元に、自分の好きにデザインし直すことができる。
世の中にないなら自分で作ってしまおう!というDIYの精神で、自分の家、さらには地域のことをジブンゴト化して、積極的に関わることを理想としている。
家づくりを通して自分と対話することで、これまでの考えや哲学が変わることも多々あるだろう。

各仕様について打ち合わせをしていると、扉の仕様で気になる話がでた。
間取りを仕切る扉をどうするかという話。
開き戸なのか引き戸なのか。引き戸でも片引き戸なのか、引き込み戸なのか。
それぞれにメリットデメリットがある。
~各扉の特徴講座~
■開き戸
内側外側で2パターンの開き方がある。開く可動域には物が置けなくなってしまうものの、取り付けに必要なスペースは最小限。また、引き戸と比べると密閉性や防音性が高く、比較的コストも割安。ただ、トイレなどの狭い空間に内開きの開き戸をつけようとすると、万が一、中で人が倒れていた時に、倒れた人や物のせいで中に入れないなんてことになってしまうことがあるので、そういうときは外開き推奨!
■引き戸
開き具合によって風通しの調節が出来たり、突風によってバタン!と閉まることが無い。閉めた時と開けた時で、扉2枚分の取り付けスペースが必要なものの、居室のデッドスペースが少ない。
ただ、引き込まれる壁には、物を寄せて置いたり、コンセントを配置したりすることが出来なくなってしまう。また、扉を開くときのレール上に物があるとそれだけで開かないなんてことにもなるので、物が多い部屋や、壁に家具などを寄せたい時は注意が必要。
■引き込み戸
壁と壁の隙間に引き込まれるように開くタイプの扉。両側が壁なので、壁に寄せて物や家具を配置するときに採用したい扉。ただ、コストが高いのと、何か故障したときに修理がしにくいというデメリットがある。
扉一つでここまで選択肢がある家づくり。
特に、トイレや浴室の扉に関しては、機能性に加えて安全性も考えて選ぶ必要がある。
一つ一つ根気強く考えていく粘り強さが試される。
その他、フローリング材に何を使うか、壁をどこまで仕上げるか、仕上げは壁紙なのか、塗装なのか、など。
素材も沢山あるので、なかなか一つに決められないなんてことも多いけど、そういうときにSTEP0で決めた、家のタイトルに立ち返ることが大事。
もちろん、これがベスト!というような正解が見えてくる訳では無いけれど、目指すべき方向が分かるのだ。

次回は『STEP4 水回りを考えよう』
キッチンなどの水回りの設備と各配管などの収まりを検討していく回。
ちなみに、打ち合わせに当たって、次回までに自分達でキッチン、バス、トイレ等について選定しておく必要がある。
実際にショールームに行ったり、カタログとにらめっこしたりしながらモノを選んでいく。
デザインや雰囲気を重視したいところでもあるけれど、掃除のしやすさなどの生活に根付いた選択をすることも極めて重要。
キッチン、バスルームなどの水回りの使い勝手は、特にこだわりたいところ!
ここまできてようやく打ち合わせも折り返し!
引き渡し後の自分たちで手を加えることも考えて、細かい打ち合わせになってきました。
次回もお楽しみに!
第4回 いよいよ模型作り!……ってあれ?その前にやることが!
前回の窓の打ち合わせから約1週間後の、10月9日(月)。
今回はSTEP2.5「模型作り」。
毎回、この打ち合わせの時間を楽しみながら取り組んでいるV様ご夫婦。
その様子を見ているだけで、ボクはとても楽しい。
V様ご夫婦、いつもありがとうございます!
ということで、早速エンジョイの事務所にて模型作りスタート!
と、いきたいとこでしたが、本日はその前にやることがありました。
建物の計画とともに、並行して進んでいた土地のこと。
土地の引き渡し前に、改めて境界の確認をするフェーズ。
計画地で売主さん、仲介の不動産屋さんと立ち合いをします!

道路との境界、隣地との境界全てあり、境界確認自体はスムーズに完了。
ちなみに境界確認というのは、道路や隣地との境界を明示している境界標がきちんとあるか、適切な位置にあるかを確認すること。
せっかく来たので、現場を見ながら細かい打ち合わせをしていく。
ここでは建物の配置や、窓の位置の打ち合わせではなく、主に解体範囲の打ち合わせ。
もちろん事前に内容を伺ってはいるのだが、現場で打ち合わせをするに越したことはない。
計画地にある塀だったり、門扉、コンクリート舗装の地面、樹木など。
残したいものと撤去したいもの、どこまで撤去して、どの部分は残して再利用するのか。
樹木なら伐採するのか伐根するのか。
特に、今回みたいに全部ではなく、一部を解体して再利用したい場合は、
図面上ではなく、現地にて詳細にイメージを共有しておく必要がある。
再利用したい塀とか門扉まで取っ払っちゃって、ガーン……なんてことにならないように!

解体範囲について打ち合わせをしている中で、
そういえば計画敷地にある樹木を家づくりの材料として利用したいというV様ご夫婦の要望があった!
実際に現地で見たその木は、ボクの想像を遥かに上回る立派な大木!
ご主人がこの大木を利用したいという理由も納得。
季節外れの寒さに、大雨の降る現場の中、
樹木の太さを測ったり、木の高さに見当をつけてたり。
無事敷地内に寝かせられるだろうか。
材料として使えるだろうか。
そんな不安もあるだろうし、悪天候の中、傘を差しながら測ったり、確認したりで大変だっただろうけど、
ボクにはV様ご夫婦がなんだか楽しそうに見えました!
今回のV様ご夫婦のプロジェクトは家をつくること。暮らすこと。
で、ボクたちエンジョイがお手伝いをしている。
V様ご夫婦が家をつくる過程を楽しんでいるから、なんだかボクも楽しいのだろう。

現場での諸々の打ち合わせを終えた後、
エンジョイの事務所に帰ってようやく本日の目的「STEP2.5 模型作り」に取り掛かる。
まずは、スチレンボードと呼ばれる板材に立面図を張り付けて、外壁や内壁、床などに合わせて切り出す。
外壁に関しては、窓からの光の入り具合を確認するため、各窓の大きさに切り抜くのだけどこれが結構大変。
特に、縦に細い窓や、引き違い窓の真ん中の部分なんかはかなり細かい。
切った後は組み立て。
工程や部材に合わせて、ご主人と奥様とでいろいろ役割分担をして進めていく。
まさに家づくりの共同作業!
難所がありながらも、黙々と作業を進めて2時間ほど。無事完成~!
うんうん。
外観がとてもスタイリッシュで、窓も統一感がありクールな仕上がり。
模型の中をパカっと開いて見せてもらったところ、
今回のV邸ならではの特徴である、1階の広い土間もバッチリ!
んん?真ん中になんかあるぞ?と思ったら。
そこにキラリと光る小さなベスパ!
聞くと、丁度いいサイズのキーホルダーがあったとのこと。
すごくイメージが湧くグッドアイデアでした!

いよいよ二次元の図面から飛び出して、三次元になったV様邸。
模型を作ったことで、窓からの日当たりや、計画敷地と建物の配置なんかもバッチリ確認できました!
次回はSTEP3インテリアを考える回。
内装の壁、床、天井などに使う部材、仕上がりを考えます。
使う部材によって家のテイストもガラッと変わってくる。
水回りに使う部材、素材なんかも機能性の面から室内とは部材を変えることがほとんど。
機能性とデザイン性、当然コストとも天秤にかけて選定していく。
いよいよ細かくなってきた~。次回もお楽しみに!
第3回 いろいろな窓をいろいろ考える回
前回の打ち合わせから2週間後の2023年10月1日(日)。
本日はSTEP2、暮らしのシーン②窓を考えようの回。
もう次の打ち合わせか、と思うほどに日が経つのが速い!
本日はいつものエンジョイの事務所から飛び出して、
建築中の現場で実際の窓を見ながら打ち合わせすることになっていました!
すると…
V様ご夫婦はこれまでの話にも何回か登場しているおしゃれバイク、
ベスパに乗ってきてくれた!(喜)
前回乗ってきていただいた深紅の大型バイクと、おしゃれな漆黒のベスパ。
実物を見ることは、V様ご夫婦と我々の間でイメージを共有するという意味で非常に大事。
今回もなんだかいい雰囲気でスタートです。

早速現場を見ながら窓のあれこれを検討していく。
前回も少し触れたけど、窓を考えることは思っているより難しい。
なんとなくのフィーリングで決めてしまうと、後悔することも多い難所なのだ。
でも大丈夫!
今回V様ご夫婦の準備もさることながら、見学現場がV邸と同じ大きさの24坪。
中の広さをそのままに、バッチリイメージすることが出来る!
今回1階の半分以上の広さを計画している土間スペースも、
改めてスケールを合わせて実際の大きさを確認。
「玄関から入ってきて…こう来て、こうか…!」
ご主人がバイクの取り回しや駐輪スペースをシュミレーション。
愛車2台停めても、なお余りある広い土間のスペースを目の当たりにして、
すごく楽し気なのが伝わってきます(笑)。
きっと既にいろいろなアイデアが頭に浮かんでいるのだろう。
暮らしながらつくる今回のスケルトンハウス。
ご夫婦の頭の中にある妄想が尽きるまで、V邸は永遠に完成しないのかもしれない。
そんな生涯をかけて遊べる大きな玩具だとしたら、決して高い買い物ではないだろう。
実は、今回の見学現場のお施主様も、DIYで壁を塗装している工程の真っ最中。
お客様自身が設計するのに加えて、今回のV様ご夫婦たちのように、自分で手を加えたいという方も少なくない。
エンジョイのお客様はそれぞれ個性的でありながらも、どうやら似ている部分が少なからずあるようだ。

今日の打ち合わせに合わせて、あらかじめ立面図にどんな窓をつけようか決めてきていたV様ご夫婦。
現場ではそれを確認し、設計士のアドバイスを聞きながら、検討していきます。
おさらいすると、今回決めるポイントは大きく3つ。
窓の「大きさ」「位置」「種類」。
実は、スケルトンハウスはその床面積に応じて、高い断熱性能を維持するための窓の面積の目安があって、それに合わせて選んでいくのだが、これが実に難しい。
なんでその位置なのか、なんでその大きさなのか。
具体的な根拠を探そうとすると切りがない。
答えがないというか、考えようによって無数にある感じ(笑)。
種類はもっと多岐にわたり、
サッシの色や機能、内側に開くのか外側に開くのか、どうやって開けるのか。
同じハンドル式でもぐるぐるするのかガチャっと開けるのか。
どうにかこの悩ましい感じが伝わってほしい……!
どう窓をつけるかを考えていると、ついつい沢山付けたくなってしまうけれど、家具や使い勝手のことも考えると、逆に、どう壁をつくるかを考えることも大事。
……生涯で、こんなにも窓のことを考えたことがあっただろうか。

一通り窓の大きさや位置について決めつつ、
今一度「窓にどんな役割を持たせるか」についても検討していく。
眺望や採光、風通し、デザイン、断熱、遮音など。
ボクがこの中でも難しいと感じたのはズバリ、他の機能を備えつつも窓に建物のデザインとしての要素も持たせること。
考えた間取りに、合理的かつ機能的に窓を配置していくと、かえって外から見た時に統一感の無い、なんてことない印象の建物になってしまう。
1階と2階で窓の位置が微妙に揃っていなかったり、大きな機能的な窓ばかりでのっぺりしちゃったり。
建物にカッコよさも求めるには、いわゆる、「無駄こそおしゃれ」という意味での、機能的ではない、デザイン重視の窓は必ず必要になる。
時に大胆に、時に繊細に。窓を配置していく中でも、遊び心を忘れるべからず!ということ。
有名建築家が設計した建築物なんかは、規模も大きく、建物のアウトライン自体をガクガクさせて建物としての顔をつくることも可能なのだけど、
殊に住宅となるとそうもいかず、
窓をうまく配置することでメリハリが生まれ、なんだかカッコイイ建物が生まれるのだ。

次回は、STEP2.5模型作り。
今まで考えたプランをもとに、模型を作成して、
屋外の日当たり、屋内への光の差し込み具合など、立体的視覚的に考える段階に移ります。
着々と進んでいるV邸プロジェクト。
色んなことが決まってきた中で、その決まったこと同士の調整が必要なところも出てきた。
果たしてどういう展開になるのだろうか!次回もお楽しみに!
第2回 プラン作成スタート!ワクワクするのはどっちだろう?
第1回の打ち合わせから約1週間後の9月18日。
残暑の厳しい暑さの中、
前回お願いしていた通り、
V様ご夫婦は例のバイクに乗ってきてくださいました。
本当にありがとうございます!
細部にご主人のこだわりがみられるクールなバイク。
深紅のタンクに、エンジン音が心地いい。
このイケてるバイクともう一つのバイク、
「ベスパ」中心といっても過言ではない今回のスケルトンハウス。
これからどんな展開になるのだろうか。

挨拶もほどほどに、さっそくスタート!
前回の打ち合わせで、「プランニングの時間を出来るだけ短縮する」
という方向性で進めることになったので、
実は既にSTEP0とSTEP1同時に取り掛かり、ハイペースで進行していた。
その為、通常STEP0を入れて全9STEPほどある工程の中で、
2週間に1回くらい打ち合わせをしながら、約4か月ほどかけてじっくり進んでいくのだが、
今回はなんと2倍の速さの1週間に1回くらいのペース。
V様ご夫婦の頑張りがあって、いつもより早く進んでおります!
まずSTEP0から。
このステップは『暮らしの10の準備』という
10個の家づくりに関する質問に沿って回答していくというもので、
自分たちがどんな家にしたいかを、より具体化することが出来る。
正直なところ、早速V様ご夫婦の考えてきた家の間取りをもとに
プランニングすると思っていたボクはちょっと拍子抜け。
でも、この後すぐ考えを改めることに(笑)

STEP0の意義は、家づくりをする上でのボヤっとした理想をきちんと具体化すること。
そうすることで、間取りや住宅設備の配置、細かい部材の色、外構計画など、
数ある選択肢の中で決め方に迷った時も、
ここで言語化した家のコンセプトに立ち返ることで、ブレない選択が出来るのだ!
人間、色んな選択肢の中で一つに絞るのがニガテな生き物。
いろいろなものが魅力的にみえてきてしまって、
一つ決めるだけでも時間と精神がすり減っていく。
考えれば考えるほど何がいいのか分からなくなってくることって結構ある(笑)
そうなった時、あるいは、そうならないように
原点として最初に掲げる旗、道しるべみたいなもの。
STEP0を甘く見ていたボクは、
なるほど!一番重要ともいえる大事なステップだったのか!とすっかり改心。
それにしても改めてこの「暮らしの10の準備」はよくできているなあ。
と、新米のボクは一人感心していた(笑)。
何がいいかって、この考えるプロセスがスマートなのだ。
何の気なしに、並べられた項目について順番に考えていくと、
自然と自分が想う理想の家について解像度が上がっていく。
実際の流れとしては、
まず最初に今の住まいの間取りを見直して、
その中で気に入っているポイント、
はたまた気に入っていないポイントなどを自由に書き出す。
そうしてから理想の暮らしや、こだわりなどについて考えて、
最後にこれから建てる理想の家にタイトルをつけるという具合になっているのだ。
これまでの生活で得た知識や経験を原点に、そこから想像を膨らませることで、
かけ離れた夢物語ではなく、
地に足がついた、近い将来の理想を段階的に考えられるツール。
今回ご夫婦で話し合って決めたコンセプトをもってして、
ブレない最初の礎がSTEP0で完成!
サポートする設計士も、そのコンセプトを十分に理解していないとイイものは作れないので、
このSTEPでご夫婦の想いを細かく聞いていきます!

STEP0を踏まえて、次のSTEP1、いよいよ「間取りのプランニング」に移る。
本日の打ち合わせに合わせてV様ご夫婦が考えたプランをもとに、
設計士と一緒に作り上げていく。
「こうしたいけどどうするのがいいか」
「この辺りはどのくらいスペースがあるのか」
「そうなるならこうするのはどうか」
そんな会話が行き交うクリエイティブな空間。
実際の事例とかご夫婦の趣味の話なんかも交えながら、
経験豊富なエンジョイの設計士が、なんでも相談にのりながら計画を詰めていく。
もちろん法令等の関係でお客様の要望通りにできないこともあるのだが、
スケルトンハウスは1階に柱を1つ設けるだけで構造上成り立つため、
中の間取りにキツイ制約などはない。
特に2階は、壁はおろか柱1本も無くして、
学校の体育館みたいな大空間に出来ちゃうのだ!
今回はご自身で手を加える余白を残す予定なので、
間取りがどうこうという話というよりは、
玄関周りの収まり方など、細かい寸法の話中心に進んでいきました。
V様ご夫婦はまだ実際どうなるか分からないとおっしゃいながらも、
この段階でかなり解像度の高いイメージをお持ちの様だ…。す、すごい!
家を、「借りる」のではなく、「建てる」以上、
出来るだけ長く住みたいと考えるもの。
でも、長く住むのにつれて暮らし方って変わる。
家族構成が変わったり、世の中の流れがかわったり。
世の中生きていればいろいろあるよね(笑)。
変わる暮らし方に合わせて家を創り変えられる。結果→長く住むことが出来る。
そんな、もとのスケルトンハウスのコンセプトに加えて、
暮らしながら創ることの出来る今回のスケルトンハウスは、
実際に自分で手を加える分、よりいっそう愛着をもって暮らせる
特別な家になること間違いないだろう。

話は進み、詳細な間取りの話に移る。
V様ご夫婦は今回1階の土間の取り方について2パターン考えてきていた。
普段の生活のことも考え、フロアをある程度残し、
インドアでの使い勝手を良くするか、
土間をより広く取って、
バイク周りの作業はもちろん、アウトドアでの使い勝手を良くするか。
メリットがそれぞれあって、非常に悩ましいところ。
設計士によると、今のところどちらのパターンでも対応可能なので、
あらかたの間取りは決めながらも、引き続きご夫婦間で考えて頂くことになった!
今回ご夫婦がSTEP0で名付けた家のタイトル。
「1/1スケールの玩具」
楽しいのはどっちだろう。ワクワクするのはどっち??
この価値基準で毎日クリエイティブなことを考えるのはホントに楽しいだろうな。
次回は、考えたプランをもとに立面図を作成して、窓の形と位置を決めるSTEP2。
建物における窓の役割は、室内の換気や明かり取り。そして眺望。
それだけでなく、建物のデザインや断熱、遮音性能など、
普段あまり意識してないけど、窓の役割って案外多い。
直観で選びたいところなのだけど、
窓一つで建物の印象や使い勝手も大きく変わる為、実に悩ましいところ。
V様ご夫婦はどんな風に考えるだろうか。次回の打ち合わせも楽しみです!
引き続きお付き合い願います!
第1回 本日設計契約!葉山V邸プロジェクトスタート!
2023年9月9日、台風一過でゴキゲンに晴れた昼下がり。
弊社のオフィスにてV邸の設計契約。
ここから家づくりのストーリーが始まります。
ボクにとって入社して初めてのスケルトンハウスのお客様。
まだ先輩営業の遠藤にくっついて日々勉強させてもらっている身でありながらも、
V様ご夫婦は快く同席することを許していただけた。ありがたき幸せ。
逆に言うと、まだエンジョイワークスに染まっていない半人前の身であるからこその感動や発見を、
このブログを読んで頂けている方々にお届けできればと思っています!
長い付き合いになりますね(笑)。
よろしくお願いします!

本日のメイン。
設計契約の説明の中で、奥様が「全体のスケジュールを
もう少し短くできないでしょうか」と、ひとこと。
工事期間は無理に縮めたくないので、自分達の設計プラン作成を短縮して
全体のスケジュールを縮めたいというのに対して、
「ほんとに縮められる?絶対いろいろ決めるのに時間かかるでしょ!」というご主人(笑)。
奥様は「きっと家から花火が観えるので、それまでに間に合うといいかな」
なんて思っていたらしく、「なるほど!確かにいいですね!」と我々。
でもご主人の言う、「そんなに急いでもしょうがない、
じっくりやっていこう」というのもすごくよくわかる。
最終的に、無理にではなく、設計プラン作成を短くするのを念頭に取り掛かり、
可能な限りスケジュールを短縮する方向性でやっていこう!と、バチっと決まった!
お二人のやり取りを見ていて、とても仲のいいご夫婦だというのが
にじみ出ていました!何でも言い合える、素敵なご夫婦。
固い話が終わって、いざこれから家づくりをしていくぞ!という場面に移る。
おそらくエンジョイワークス独自の書類であろう「家づくり宣言」の中の
最初の一文、「家づくりをジブンゴト化しよう」
これは、あくまでもお客様が主人公で、我々は脇役。
お客様自身が想い描いた理想の家の実現を、全力でサポートしますという意味。
スケルトンハウスはお客様が主体で設計をして頂くので、設計料は頂かないスタイルです。
それに、他のハウスメーカーや工務店では断られることも多い、
施主支給の設備やインテリアの持ち込みも大歓迎!その代わり、
工事のタイミングを守るフェアプレー精神でお願いします!というルール。

ここまでボクにとって初めてなことだらけなのだけど、
どうやら今回V様ご夫婦はスケルトンハウス史上、
最も「自分たちで創る」形に近い家が理想のようだ。
頑丈な躯体、屋根、断熱などは我々エンジョイにしっかり任せてもらって、
お引き渡しの後、中はお客様のご自由にという究極の形。
中の内装というと天井、壁、床、あらゆる箇所を自分好みに創れる
余白を残せるのだが、今回のV様夫婦は床から自分たちでやってみたいというワンダーなご夫婦。
そんなこともあってか、ボクが今回の密着のお願いをした時、
奥様が「引き渡し時はまっさらだけどいいの?」とおっしゃられていましたが、
ボク含めて我々は「それがいいんです!(笑)。」とキッパリ!
この家がどういう風になるか密着させてもらえるのはボクにとってとても勉強になるし、
お引き渡し後もV様ご夫婦がどのように仕上げるのか非常に興味があります!

家づくりの話が進む中で、ご主人からも一つ質問。
「土地の引き渡しはいつごろになりますか?」
というのも、購入予定地に生えている既存樹を土地の造成の関係で
伐採しなければならないのだけど、その木がすごく立派な木なので
是非今回の家づくりの床材として使用したいとのこと。
そうする為には、あらかじめ木を切って、早めに乾燥させる必要があるため、
土地の引き渡し日が気になるとのことでした。
ご主人の見立てもあっぱれなところで、
「あれ、すごくいい木なんですよ、何かに使わないともったいない!
製材するところもなんとなくアテがあります!」と楽し気に語っておられました。
まさに、これがホントの地産地消!
なるほど、クリエイティブなお客様が多いのもエンジョイワークスの特徴かもしれません。
V様ご夫婦も『巨大なプラモデルを買った気分で、自分で作る過程も楽しみたい』と、ナイスなマインドの持ち主。
確かに、自分の家を買う、注文する経験はあっても、
創る経験なんてそんなに出来るもんじゃない。
この会社にジョインして間もないボクの中の価値観も
改めてガラッと変わった瞬間でした。

最後に次回の打ち合わせの話。
結論、今日と同じ弊社の事務所にて行うのだが、
V様ご夫婦はご主人の大型バイクで来社頂くことに(笑)。
というのも、ご主人所有のお洒落なバイク、べスパと、自慢の大型バイクをそれぞれ大切に扱われていて、
今回の計画では室内の土間を大きく取ってそこにバイクを置きたい
とのことでしたので、設計の谷村がどんなバイクか拝見したいといったのがきっかけでした。
ご夫婦でバイクで出かける時は、奥様は後ろのタンデムシートが指定席。
乗るのにコツが必要なので、実はあまり好きではないらしいものの、
「谷村さんが観たいというなら仕方ない!」と納得頂き、
ご主人も「大型バイクに乗れる機会を頂けてありがたい」と陽気におっしゃっていました(笑)。
なんだかいい空気感で始まったV邸のストーリー。
これからどんな家が出来あがるのだろうか。
ボクは当事者でないものの想像するだけでワクワクしてきます…!
次回の更新もお楽しみに!
