第5回 「自分色」に染めよう。
いよいよ工事も終盤に入り、足場も外され、木張りのスケルトンハウスが見えてきました。工事後半は建物だけでなく外構工事もスタートしました。
外構計画は敷地が旗竿のため、玄関までの長いアプローチを土間で仕上げ、ポーチはウッドデッキの延長でレッドシダーでつくりました。ポーチ目の前は駐車スペースとして芝生と馴染ませるため、枕木を敷きました。写真ですと、芝生植栽時期が2月だったため葉が茶色ですが、おそらく今頃は青々とした芝生になっているはずです。
デッキにはパーゴラも計画し、その隣にはサーフボードなどを収納できるよう職人さんにサーフラックを作っていただきました。
パーゴラに日避け用のシェードを付ければ、真夏でもBBQを快適に楽しめます。デッキ側外壁にはシャワー水栓もついているので子供たちは水遊びもできるので夏は大人も子供も楽しめるスペースとなります。

外構もかたちになり、2月下旬ごろ建物内部も仕上げの塗装が終わり、アースカラーにまとまった鵠沼藤が谷スケルトンハウスが完成しました!
玄関を開けると、広々とした土間と鉄骨階段が印象的な空間です。
住まい手の方が自由に暮らしをアレンジできるよう作り込まずシンプルにまとめました。
ここに住む方がどう「自分色」に染めるのかワクワク感のあるスケルトンハウスが鵠沼に誕生しました。これをきっかけに藤沢エリアにスケルトンハウスやまちづくりに共感していただける人が増えると、素敵な街並みが広がっていくと思います。
そんなきっかけにもなってほしいという希望も込めて今回設計させていただきました。無事完成し、お施主様の「自分色」がどんなインフィルに仕上がるのかとても楽しみです。
第4回 秋の訪れと共にいよいよ着工です!
プラン、内装もまとまりいよいよ着工です!
工事は10月下旬にスタート。ここの土地は地盤改良がなく、天候にも左右されず基礎着工から上棟までがとてもスムーズに進みました。

配筋検査も無事クリアし、気づけばあっという間に上棟し、耐力面材のモイスが張られ、建物の全体ボリュームがみえてきました。
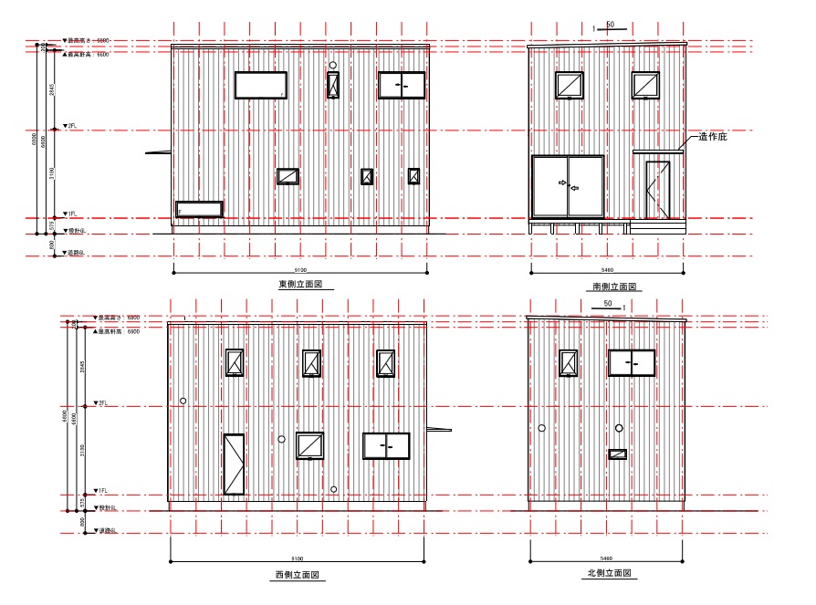
南側正面の開口部がバランス良く計画できたの一安心!
建物はアプローチからの見え方が大切です。

内部は断熱材を施工する前の状態です。
筋交いや金物、梁の様子がはっきり確認できます。
この状態ですと、間仕切り壁がないワンフロアの広々とした空間が広がります。2階の床の合板下まで約3m以上高さがあるので、この中で声を出すと反響し、まるでホールにいるような感覚になります。

断熱材を入れた後、石膏ボードを張り、キッチン廻りの造作家具の箱組みが出来上がりました。

このキッチンカウンターは家具屋さんではなく大工さんが作りました。小口の処理から、細かい納まりまで丁寧に作っていただきました。
今回のプランでは玄関入ってすぐにLDKなのでキッチンカウンターの見せ方にも力を入れ、計画しました。現場監督さんと現場で図面を見ながらいろいろアドバイスをいただき、私自身とても勉強になりました。仕上りが楽しみです!
次回はいよいよ仕上げに向けて工事が進んでいきます!
第3回 自分色に染められるプランとは
社内ミーティングでのブラッシュアップ後、完成したプランがこちら!

プランを見ると、あれ・・・?
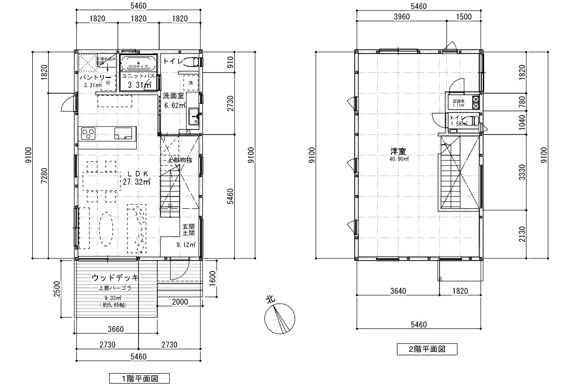
2階の間仕切り壁が無い・・・!?
フルオープンな空間がどーん!
そうなんです。これが今回、鵠沼の特徴である「自分色に染める家」であり、2階の自由度を高くすることにより住み手が間仕切り壁を計画したり、そのまま広々と暮らしたり、住み方に遊び心と自由度を持たせた、これぞスケルトンハウス!といったプランになりました。
2階を広々と自由な空間にするためには、1階にLDKや水廻りといった生活スペースをまとめ、そうすることにより生活動線もスムーズになりました。
特に1階は玄関土間が北側に長く伸びています。これは外でアウトドアや水遊びなどで濡れたり汚れたままでも玄関土間~洗面室まで直行することができ、そのまま浴室へGO!っといた動線を想像して計画しました。
床の掃除のことも考え、土間と洗面室内はすべてタイルで仕上げる計画にしました。これなら汚れても掃除がしやすくて安心です。
海でのスポーツやアウトドア好きの人たちに重宝しそうな鵠沼LIFEを楽しみたい人たちにぴったりのプランです。
間取りを考える上で重要なサッシの位置もまとまり、立面図も完成しました。
サッシの位置は北西側、西側に隣家があるため、視線を配慮し計画しました。
また、2階の間取りの自由度に対応できるようサッシの位置、数、サイズなど何度も検討し、今のプランにまとまりました。サッシの位置の検討はなかなか難しかったです・・・。
平面、立面が完成し、次のステップは内装仕上げを決めます。

写真を見るとどれも同じものに見えますね。
(写真:上かクリ、クルミ、オーク)
実際は触ってみると硬さや質感が異なります。
この3種類の中ではオークが一番硬く、今回選んだ床材は硬すぎず、柔らかすぎないクリの無垢材を選びました。色合いや質感のバランスが丁度良いところが特徴です。
土間、水廻りははタイル、フローリングはクリの無垢材、壁は無垢の質感に合わせ塗装仕上げにしました。全体的にシンプルで住まい手がインテリアなど組み合わせしやすい仕上げでまとめました。
設備機器もシステムキッチン、ユニットバスなどシンプルでお手入れしやすものを選びました。
インフィルも決まり、次回はいよいよ工事着工です!
第2回 鵠沼Lifeを妄想しよう
既存建物の解体が完了し、敷地全体が把握しやすくなり、
改めて敷地調査と建物配置の確認へ現地へ向かいました。

配置が確定し、次に行うステップはプランの検討です。
まずは、前回1話で出てきたワードをもとに、どのようなプランが周辺環境とそこに住む人々の暮らしに合うのか、ポイントをまとめました。
重要なポイントは「可変性」と「家族構成」。
現地周辺には学校や幼稚園などもあり、子育て世代の方たちが多く暮らしている地域です。この地域は子育て世代の方々には良い条件がそろっているため、子供の成長や数年後、数十年後の家族のライフスタイルに合わせて間取りを変えることのできるプランが受け入れてもらえるのではと考えました。
そこで、家族構成としては夫婦+子供2人をベースに、それぞれ個室を持つことができるよう最大個室4室とLDK、水廻りというプランで進めていくことにしました。また、子育て世代だけではなく、2階をセカンドリビングとして使ったり、シアタールーム、書斎など大人なゆとりのある暮らしも計画できるよう、幅広い「家族のカタチ」にあわせた空間づくりを目指しました。
そして、室内だけでなく、アウトドア好きの方や海のスポーツを楽しみたい方たちにも使いやすい充実した外構計画も取り入れることにしました。

コンセプトと方向性が固まったので手書きでプランを書いていきます。
書いては消して、書いては消しての繰り返し・・・。
できたプランを社内ミーティングで見ていただき皆さんの意見を取り入れ、プランをブラッシュアップしていきます。この工程がとても大切なのです。
そして出来上がったプランが・・・!次回いよいよプラン公開です。
第1回 鵠沼初進出!
葉山、逗子、鎌倉エリアを中心に徐々に棟数、認知度を広げているスケルトンハウス。
今回、古くから豊かなまち並みが残っている鵠沼にスケルトンハウスが初進出!スケルトンハウスのコンセプトの一つでもあるで優良なストックになる家づくりを通して、鵠沼の新しい風景にもなりつつ、まちに馴染み、住まい手に愛着を持ってもらえるような家づくりを目指しています。
まずは鵠沼エリアの方たちにスケルトンハウスを知ってほしい、見てほしいという意味も込めて自社物件としてスケルトンハウス30坪の計画でスタートしました。
計画地は鵠沼海岸駅近くの住宅街にある旗竿地。敷地内には既存建物があったためまずは解体工事から始まりました。
既存の土地はこんな感じでした。
夏の時期だったため雑草が伸び放題。この時点ですと敷地全体の雰囲気はよくわからない状態でした。前面道路からの通路も細かったため、お隣の方と共有で使用する通路でもあるためアプローチを広げる工事も行いました。

解体工事も無事完了し、日当たりの良い敷地が姿を現しました。

ここで大切なのは敷地と建物の配置関係、そして周辺環境を知ること。
自社物件の計画はまずコンセプトづくりが重要なため周辺環境に合った家づくり、どんなライフスタイルをここで送ってほしいか、家族構成、職種、趣味など具体的にイメージすることが大切です。
今回鵠沼のイメージとしてあがったワードは
・家族構成(夫婦、または子供いる)
・趣味はサーフィン、SUP、釣りなど海のアウトドア好き
・読んでいる雑誌は「OCEANS」など
・家でまったり過ごすのも好き
・家族や友達とBBQ
・自転車よく使う
・自動車は四駆乗ってるイメージ
などなど・・・
このワードをもとに間取りや外構、内装のイメージを考えていきます。
次回は設計プロセスについてご紹介します!