第4回 9坪ハウスができるまで=配置・プラン=
9坪ハウスはシンプルだし、考えるのも簡単でしょ!
いやいや、まさか、そんなはずがありません。
シンプルだからこそ、検討すべきことはたくさんあるのです。
その軌跡を紹介します!
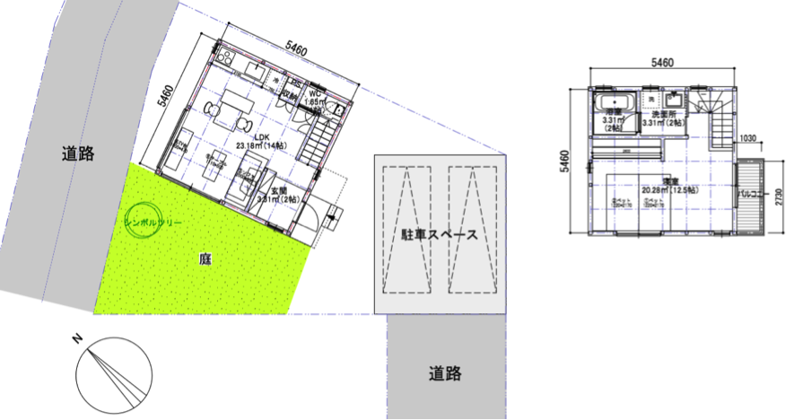
まずはどうしてこの敷地に対して建物がこの位置なのか。
建物は配置すればいいってもんではありません!
駐車場やお庭の位置、日当たり、通風、お隣さんとの距離感…
そのバランスによって決まるのです。
そのバランスは、この9坪ハウスでは模型を使って考えました。
お客様がご自宅で、携帯のライトを太陽と見立て、一生懸命検討されました。

配置を変えると、1階に入る光の影が変わるのです。
プランの検討もこの量です!
<1案>

<2案>

<3案>

家づくりって大変。
でも自分が住む家だから、ジブンゴトとしてとことん考えるべきなんです。
最後に<4案>。
S邸はこの1〜4案の良さを抽出したプランに決定。
建物が上棟し、実際にお客様が確認されたときのほっとしたお顔で、
我々も安心しました。
次回はいよいよ9坪ハウスが上棟します!
第3回 9坪ハウス着工します!
スケルトンハウス初の9坪ハウス、ついに敷地に姿を現しました。
この木組み、一体何なのか…。
これは「遣り方」と言って、
工事着手前に建物の正確な位置を 出すための作業で、
木を組んでその内側にロープで建物の形状を表しています。
なんといっても日当たり抜群!
この9坪のロープから、徐々に立体になっていきます。
楽しみですねー!
第2回 地鎮祭を無事終えました☆
師走感じるキリリとした空気の中、地鎮祭が無事に執り行われました。
春の竣工に向けて、より一層気合いが入ります!
第1回 ミニマルに住まう・建坪9坪のスケルトンハウス
最近書店でも、「ミニマルライフ」に関する書籍をよく目にします。
ミニマルライフ、つまり最小限の暮らし。
住宅の間取りや住まい方でもその思想は当てはまります。
ミニマル=狭い、ではない、ライフスタイルをよくよく考えたら
とてもシンプルな間取りになりました。
そんな建坪9坪のスケルトンハウスは、
ただいま完成形に向けて詳細設計中です。
今回は模型を作成し、敷地のどこに建物を配置するか、
窓はどこにつけるか、庭の位置は?リビングの向きは?!
お客様と弊社の設計営業でよってたかって検討しました。
スケルトンハウスで建てる、9坪ハウス。
完成をお楽しみに!
